Nakhijevanik Homes

The fall 2020 Artsakh war, resulted in a major humanitarian disaster and the displacement of thousands of families.

Support Our Heroes NGO has taken a strategic decision to allocate a considerable amount of its resources to the repatriation of the young, multi-child families back to the Republic of Artsakh.

We understand that repatriation is much more than just building dwellings and resettling those in need of homes. We realize that managing the repatriation of people who have lost their lifelong achievements, possessions and livelihoods is greater than what us, just an organization can accomplish. However, leveraging our 20 years of experience in this field, we intend to do our utmost to rebuild the lives of our compatriots, who were displaced from their native lands of Armenian Jrakan, Kashatagh, Martuni, Askeran, Martakert, Hadrut and Shushi. For this, as with our past projects, we are committed to being result-oriented and focus on the long-term effectiveness of our projects.

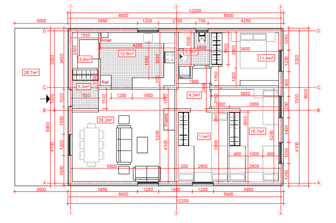
In addition to the many homes we are currently rebuilding and furnishing in different parts of Artsakh (please see the Artsakh Strategic Repatriation section in our projects), Support Our Heroes is soon starting construction on a 16 home model community in the village of Nakhijevanik of the Askeran region. The community is located 7 kilometers from the city of Askeran, and like many Artsakh communities, is in dire need of basic services.

Project Nakhijevanik is a major undertaking for us and we need sizable funds to help realize it.

The project is set to be completed in phases, the last of which slated to be completed on 12.2024.

Dear supporter and believer in our cause, your direct financial support of Project Nakhijevanik is key to our success. Please contact us to find out how you can sponsor your own family in Project Nakhijevanik.

Gallery

Videos

Links

Presentation_Nakhijevanik Homes